
April 29, 2026
Updating an existing home is rarely about starting over—it’s about making the right changes, in the right places, with complete clarity before construction begins. For this Florida-based project, the objective was straightforward: to transform an existing house elevation into a more modern, refined design.
“It is to make the house design more modern and update the front elevation style.” — Client Hung
While the design direction was clear, the challenge was not the idea itself—it was ensuring that materials, proportions, and overall composition worked together cohesively before execution.

Modern residential design is defined by simplicity, balance, and intentional material use. Achieving that requires more than drawings—it requires visibility.
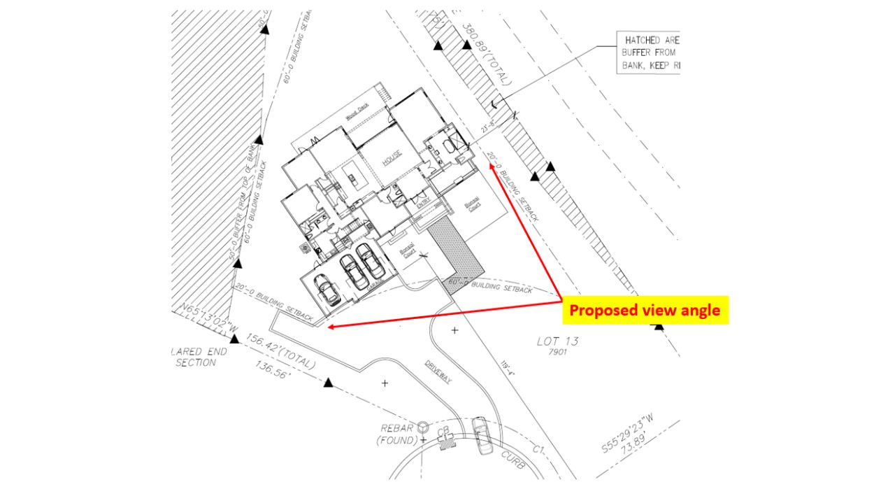
For this project, the goal was to deliver a single high-quality 3D front elevation rendering based on a specified view angle. The visualization needed to accurately represent:
At the same time, the design had to remain adaptable.
“Anything else per your professional taste. Take any angle you think the best.” — Client Hung This placed responsibility not just on execution—but on interpretation.
The process began with a detailed review of all provided inputs:
“Please use those materials and colors as direction and render this image at the best quality as you can.”— Client Feedback
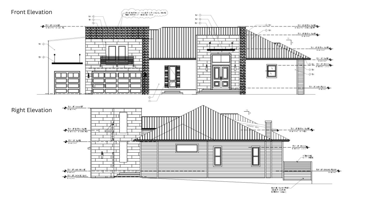
Using these references, the design was translated into a precise 3D model, ensuring that every element aligned with the intended architectural direction. The focus was not just to visualize—but to create a clear, build-ready representation of the updated elevation.
The success of the elevation relied heavily on material balance and contrast. Key exterior elements included:
Each material was carefully positioned to ensure cohesion across the façade, allowing the elevation to feel both modern and grounded within its environment.
The completed 3D rendering presented a clear and confident transformation of the home’s exterior.
The composition emphasized:
The result was a front elevation that feels intentional, cohesive, and aligned with contemporary design standards.

To achieve this level of clarity, several targeted refinements were implemented:
These updates ensured that the final rendering accurately reflected both the design intent and the desired visual impact.

Projects involving existing homes often carry more uncertainty than new builds. Without clear visualization, decisions around materials and proportions can lead to costly revisions later.
3D visualization addresses this by:
In this case, a single rendering was enough to define the direction with confidence. Updating a home is not just about changing its appearance—it’s about ensuring that every decision contributes to a cohesive final result.
With the help of 3D visualization, this project moved from concept to clarity without uncertainty. At Houston 3D Renderings, we help homeowners, architects, and builders visualize their projects before construction begins—so every detail is resolved early and every decision is made with confidence.
Explore more at: www.houston3drenderings.com